Architectural design & permitting

Professional Architectural Planning for Approved Builds.

Architectural Design & Permitting Support

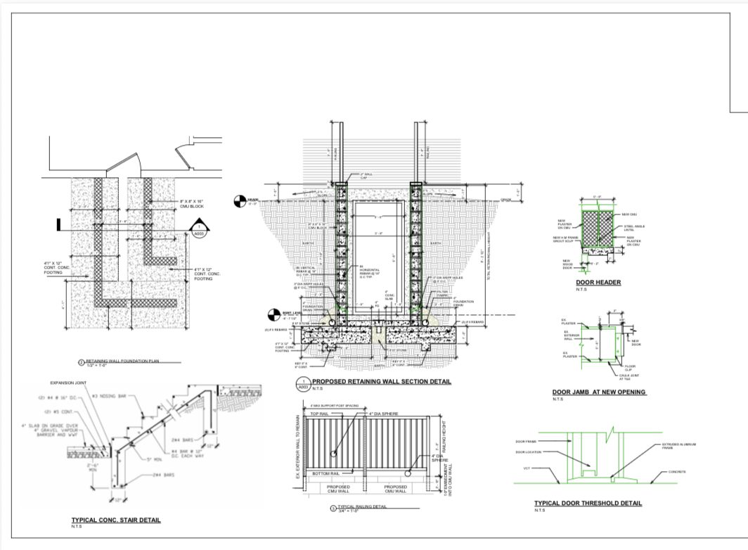
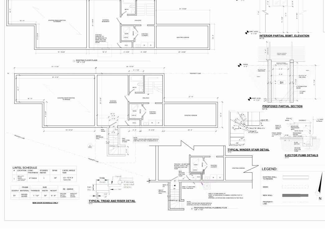
We provide detailed architectural plans, elevation drawings, and required documentation to support permitting and municipal approvals. Our design services ensure accuracy, compliance, and a smooth transition from concept to construction.

Architectural services are offered separately from construction

Architectural design

What's Included in Our Architectural Design Services

Detailed architectural plans & drawings
Complete elevation drawings & documentation
Permitting & approval documentation
Compliance review & code analysis
Seamless transition to construction planning
Our Architectural Design Process | Step-by-Step Guide

Our Architectural Design & Permitting Process

Initial Consultation

We discuss your vision and requirements to understand the scope and objectives of your project.

Design Development

Creation of detailed architectural plans, elevation drawings, and comprehensive documentation.

Permitting & Approvals

Preparation and submission of all required documentation for permits and regulatory approvals.

Construction Transition

Seamless handoff of approved plans for accurate construction implementation and compliance.

Architectural design & Permitting Projects Gallery

Frequently Asked Questions

Yes, detailed plans and elevations.

Yes, required documentation is provided.

Yes, design services are priced independently.

Yes, they are prepared for permitting.

Ready to Start with the Right Plans?